Panorámás!
KAPCSOLAT
IDŐPONTOT KÉREK
VISSZAHÍVÁST KÉREK
AJÁNLOM EGY ISMERŐSÖMNEK
MEGOSZTÁS
KAPCSOLATFELVÉTEL
Az üzenetet sikeresen elküldtük!
Hiba történt!
INGATLAN ADATAI
Ingatlan jellege
telek
Telek terület
1067 m²
Tájolás
dél, kelet, délnyugat
Közműállapot
csatorna: bekötve
gáz: bekötve
villany: bekötve
víz: bekötve
Művelési ága
építési telek
Övezeti besorolás
uj-lke
HTML
PDF
Eladó építési telek
Belső azonosító:
3446e TJtelek
Ingatlan azonosító:
16099_bh
Budapest, XII. kerület, Svábhegy
Irányár
460 M Ft
(431.12 E Ft/㎡)
(431.12 E Ft/㎡)
Telek terület
1067 m²
INGATLAN LEÍRÁSA
Kivételes lehetőség Svábhegyen !
Budapest XII. kerület egyik legkedveltebb részén, 1067 m2 -es sík ,panorámás építési saroktelek eladó.
A telek beépíthetősége terepszint felett :20%
A telek beépíthetősége terepszint alatt :35%
Általános szintterületi mutató: 0,4
Legkisebb zöldfelületi mutató :65%
Építménymagasság :6,5 m
Utcafronti szélesség :43 m
A közművek közül a víz ,villany ,csatorna telken belül ,a gáz az utcában található.
A telken egy kis alapterületű, bontandó épület helyezkedik el.
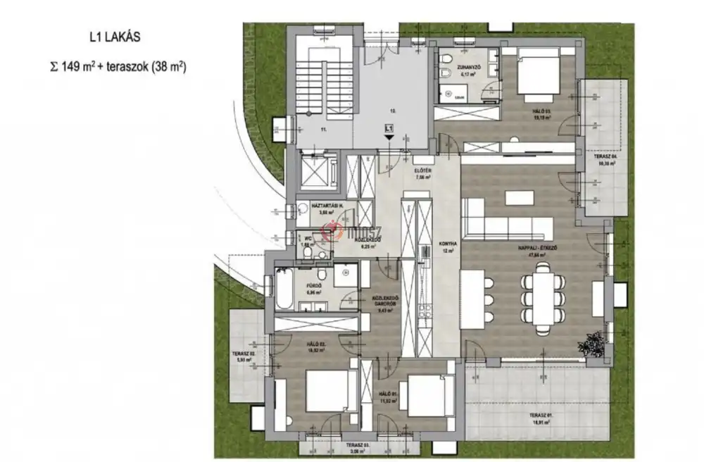
Az ingatlanra családi ház ,ikerház ,illetve kétlakásos lakóépület építhető.
A telek kétlakásos lakóépületre vonatkozó, véglegessé vált építési engedéllyel rendelkezik.
A rendelkezésünkre álló építészeti , épületgépészeti ,elektromos ,tartószerkezeti , kertészeti engedélyezési ,továbbá az épületgépészeti ,elektromos ,tartószerkezeti kiviteli ,valamint a Belsőépítész Stúdió által készített belsőépítészeti tervdokumentációkat a vételár tartalmazza.
Budapest XII. kerület egyik legkedveltebb részén, 1067 m2 -es sík ,panorámás építési saroktelek eladó.
A telek beépíthetősége terepszint felett :20%
A telek beépíthetősége terepszint alatt :35%
Általános szintterületi mutató: 0,4
Legkisebb zöldfelületi mutató :65%
Építménymagasság :6,5 m
Utcafronti szélesség :43 m
A közművek közül a víz ,villany ,csatorna telken belül ,a gáz az utcában található.
A telken egy kis alapterületű, bontandó épület helyezkedik el.
Az ingatlanra családi ház ,ikerház ,illetve kétlakásos lakóépület építhető.
A telek kétlakásos lakóépületre vonatkozó, véglegessé vált építési engedéllyel rendelkezik.
A rendelkezésünkre álló építészeti , épületgépészeti ,elektromos ,tartószerkezeti , kertészeti engedélyezési ,továbbá az épületgépészeti ,elektromos ,tartószerkezeti kiviteli ,valamint a Belsőépítész Stúdió által készített belsőépítészeti tervdokumentációkat a vételár tartalmazza.
INGATLAN ADATAI
Ingatlan jellege
telek
Telek terület
1067 m²
Tájolás
dél, kelet, délnyugat
Közműállapot
csatorna: bekötve
gáz: bekötve
villany: bekötve
víz: bekötve
gáz: bekötve
villany: bekötve
víz: bekötve
Művelési ága
építési telek
Övezeti besorolás
uj-lke
Hitelkalkulátor
KAPCSOLAT

Németh Zoltán László
+36 70 500 4467
info@budahouse.hu
KAPCSOLAT
IDŐPONTOT KÉREK
VISSZAHÍVÁST KÉREK
AJÁNLOM EGY ISMERŐSÖMNEK
MEGOSZTÁS
KAPCSOLATFELVÉTEL
Az üzenetet sikeresen elküldtük!
Hiba történt!
INGATLAN ADATAI
Ingatlan jellege
telek
Telek terület
1067 m²
Tájolás
dél, kelet, délnyugat
Ingatlan állapot
kívül:
belül:
Közműállapot
csatorna: bekötve
gáz: bekötve
villany: bekötve
víz: bekötve
Művelési ága
építési telek
Övezeti besorolás
uj-lke
HTML
PDF